Projets
Références
Immeuble de logements et centre d'entretien pour bus RATP
Auberge de jeunesse
Complexe sportif
Office notarial en Ille-et-Vilaine (en cours)
L'Agronaute, Agriculture urbaine et évènementiel, Mise aux normes ERP, accueil du public lors de grands évènements
Projet de garage poids lourds
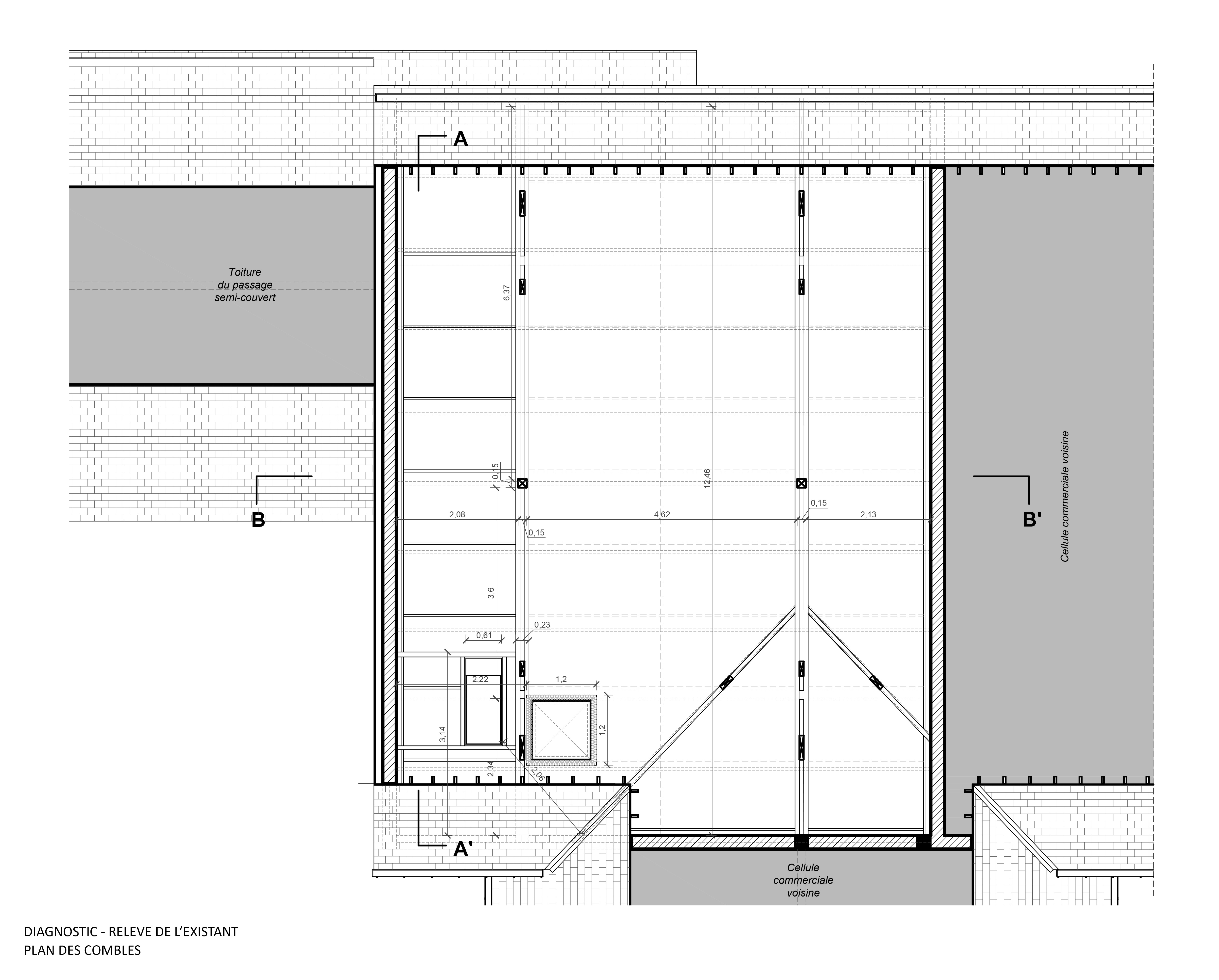
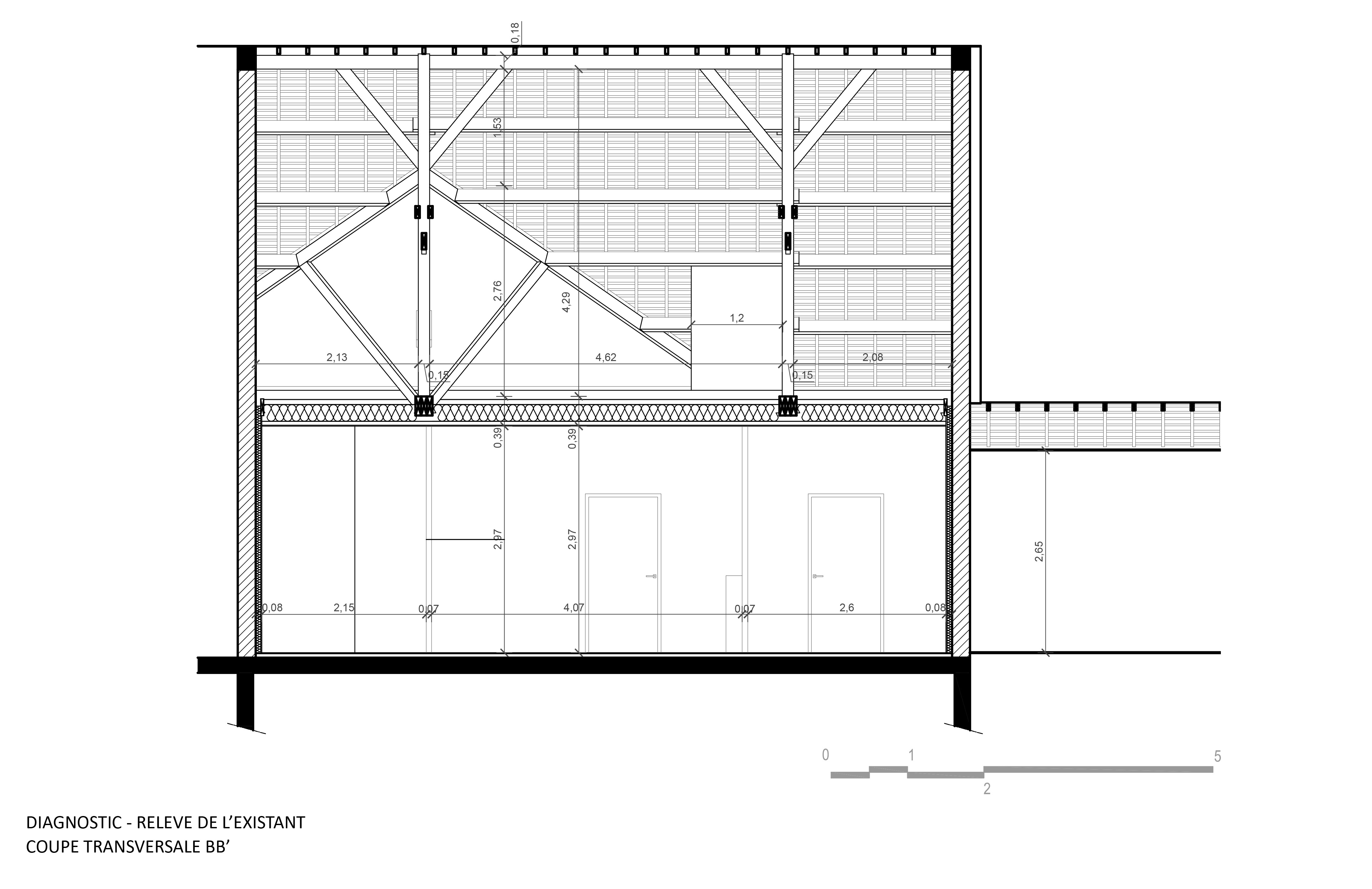
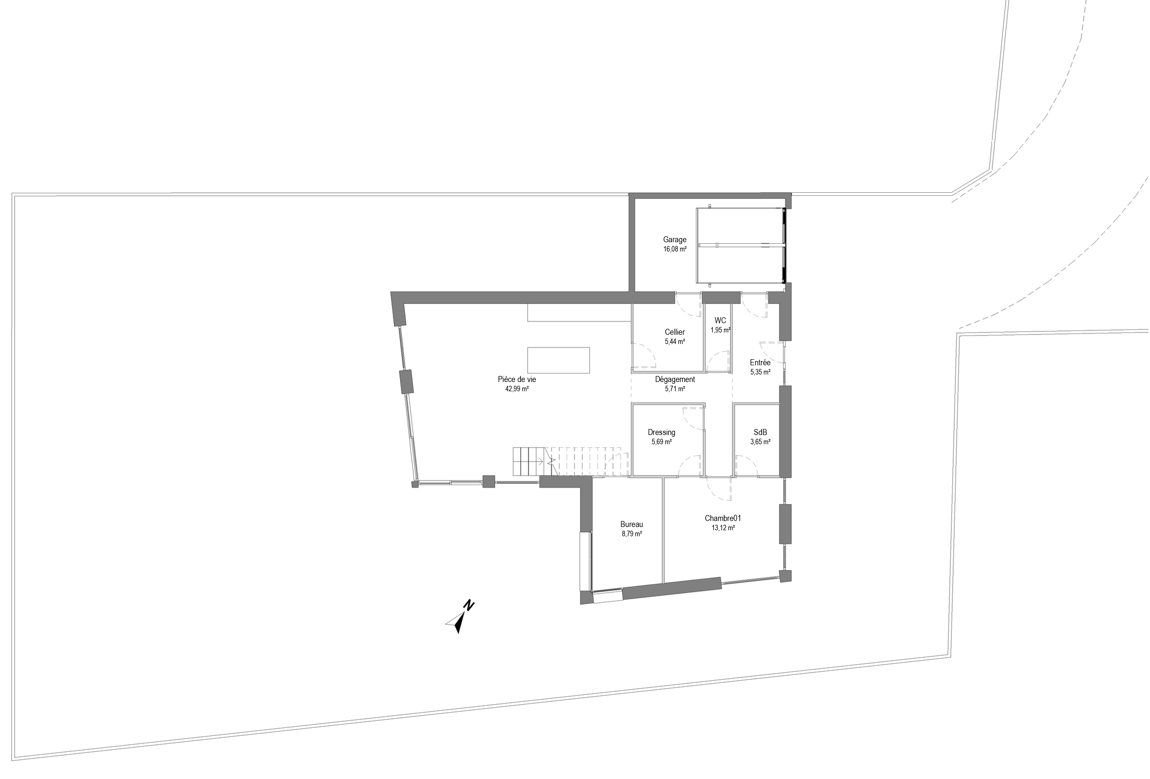
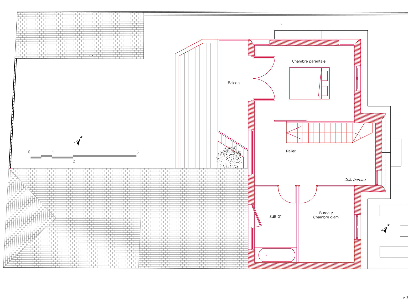
Surélévation d'une Maison de style balnéaire, Pornichet
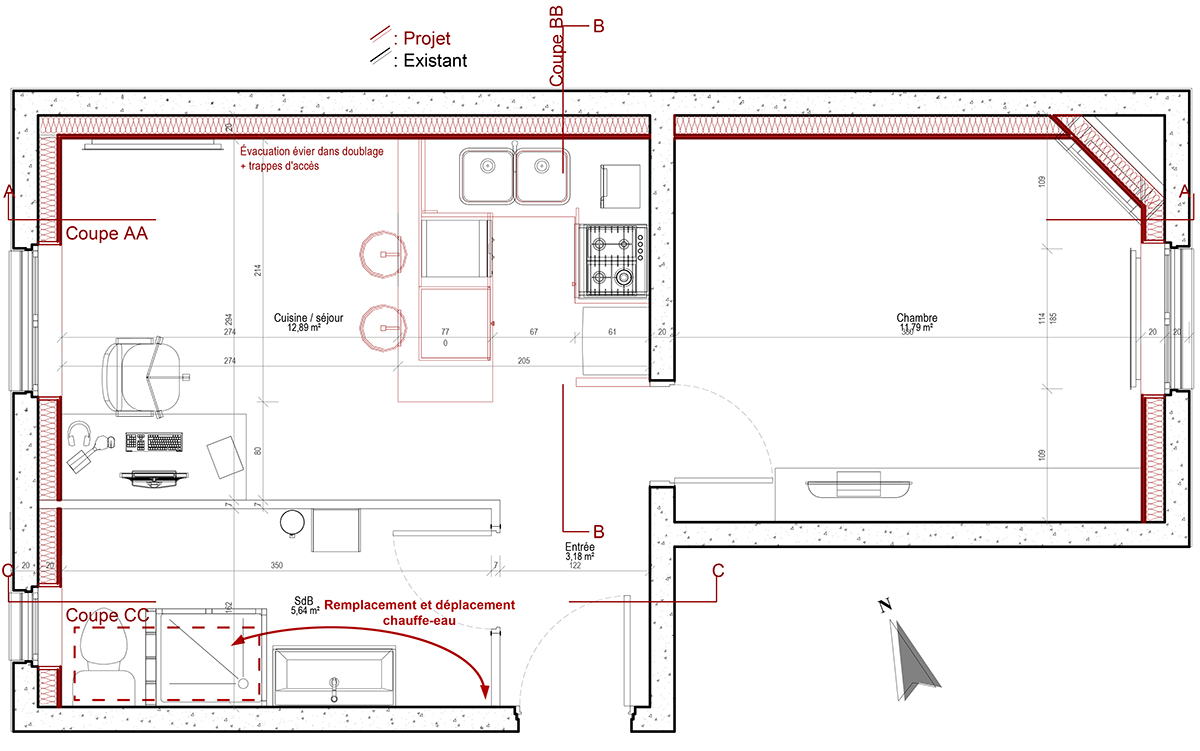
Réhabilitation et isolation d'un Appartement au sein d'un immeuble Art-Déco des années 30
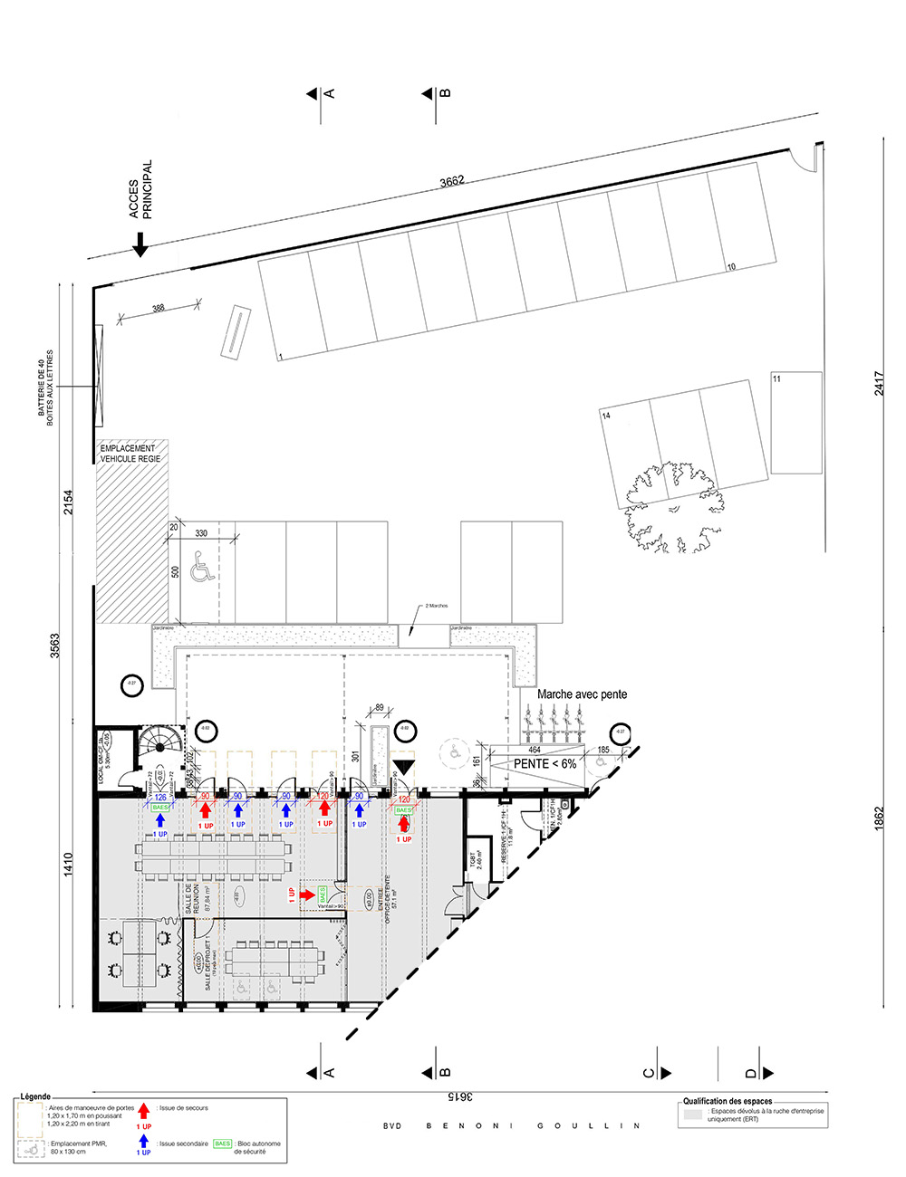
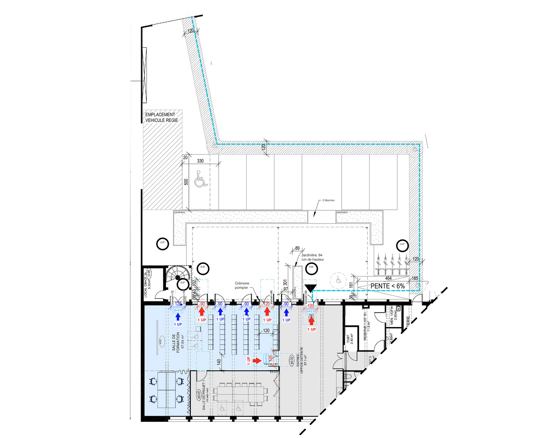
Espace de Formation et Bureaux, Mise aux normes, ERP
Surélévation d'une maison à Divatte-sur-Loire
Construction d'une maison à Sautron
Agriculture urbaine, Mise aux normes, ERP
Extension de Maison à Saint-Sébastien-sur-Loire
Réhabilitation et extension d'une Maison à Piriac-sur-Mer
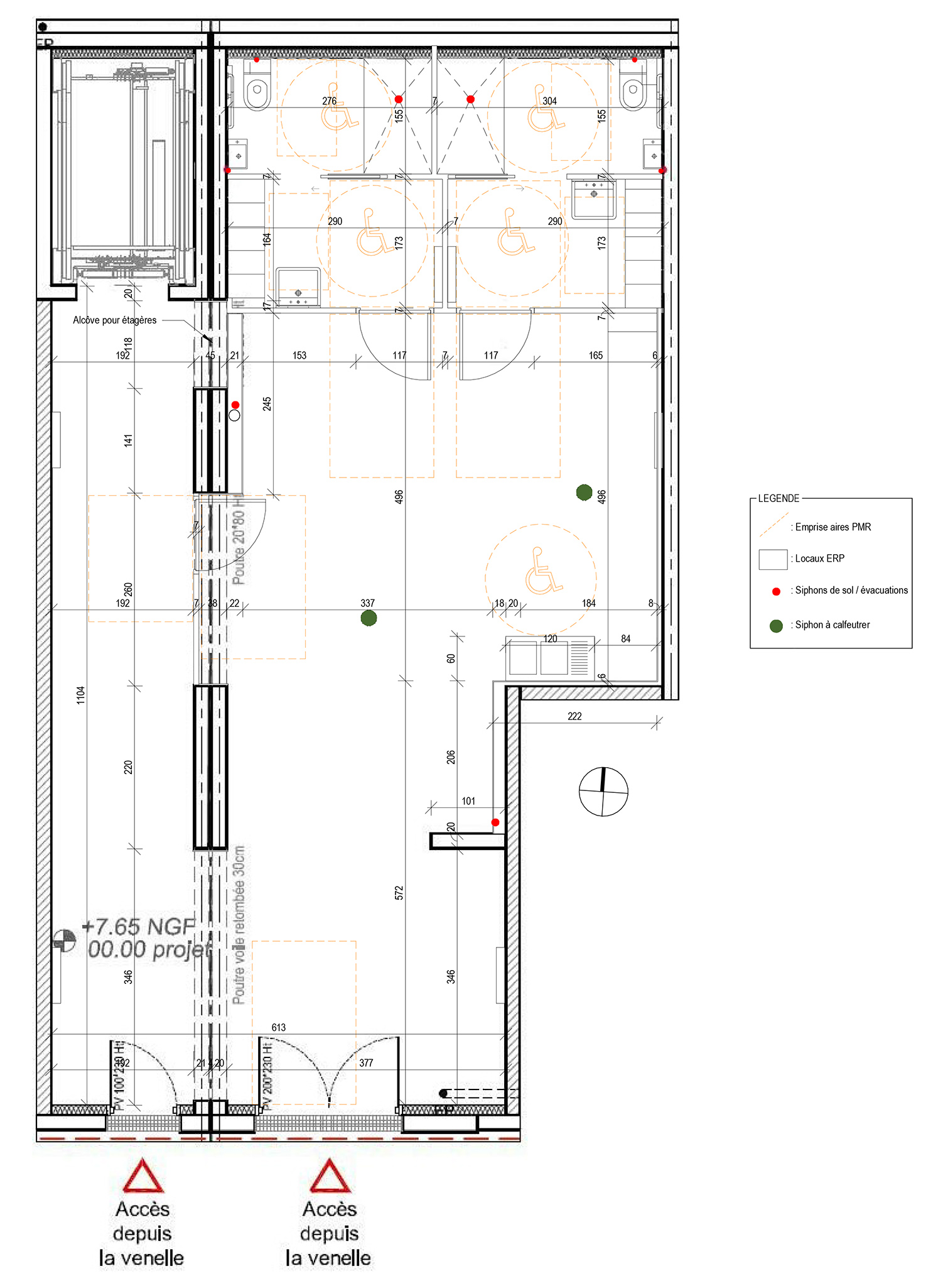
Accès, traitement urbain et paysager, Intégration de locaux techniques
LÂO :
OPEN'R
SGAMI
Concours : Centre pénitentiaire Ouvert
Commerce
Maison de quartier Saint-Exupéry
Ecole Immaculée Conception
Résidence Faidherbe
Eglise néogothique d'Hallines, labellisée à la Fondation du Patrimoine - Restauration
Petit collectif : Maison G
Restaurations d'Eglises labellisée à la Fondation du Patrimoine
Hôtel particulier, extension et réhabilitation en un immeuble collectif de 09 appartements
Références réalisées au sein d'autres agences